Empreendimento Imobiliário: Invista na acessibilidade e atraia mais clientes
A adaptação de empreendimentos imobiliários às normas de acessibilidade é fundamental para garantir que todas as pessoas, independentemente de suas limitações, possam ter acesso a esses espaços. Para empresas de facilities, que gerenciam esses empreendimentos, essa adaptação é ainda mais importante, pois demonstra um compromisso com a inclusão e a diversidade, além de garantir a segurança e a autonomia dos usuários. A adaptação da acessibilidade também pode trazer benefícios para a imagem e a confiança da empresa, atraindo clientes e colaboradores engajados com a causa.
Ao adaptar seus empreendimentos para garantir a acessibilidade de todas as pessoas, independentemente de suas habilidades físicas, as empresas demonstram um compromisso com a inclusão e a diversidade. Garantir rotas acessíveis para todas as áreas do prédio de uso comum, incluindo as áreas de funcionários, é uma medida essencial para promover a acessibilidade e melhorar a qualidade de vida das pessoas com deficiência ou mobilidade reduzida.
Faça agora seu cheklist!
1) Todas as Entradas Acessíveis
Para adaptar edificações e equipamentos urbanos existentes às normas de acessibilidade, todas as entradas devem ser acessíveis, caso não seja possível tornar todas as entradas acessíveis, deve-se adaptar o maior número possível, com distância máxima entre elas de 50 metros. Importante: as entradas devem estar conectadas por rotas acessíveis e livres de obstáculos . O acesso por entradas secundárias é aceitável apenas se justificado tecnicamente e esgotadas todas as possibilidades de adequação da entrada principal.
A circulação pode ser horizontal e vertical. A circulação vertical pode ser realizada por escadas, rampas ou equipamentos eletromecânicos, sendo considerada acessível quando atender no mínimo a duas formas de deslocamento vertical.


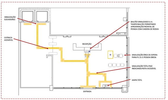
Acessos: dispositivos de segurança, catracas
Quando existirem dispositivos de segurança e para controle de acesso, do tipo catracas, cancelas, portas ou outros, pelo menos um deles em cada conjunto deve ser acessível, garantindo ao usuário o acesso, manobra, circulação e aproximação para o manuseio do equipamento com autonomia, o dispositivo para controle de acesso deve prever manobra de cadeira de rodas, e os eventuais comandos acionáveis por usuários devem estar posicionados dentro da faixa de alcance manual.
2) Sinalização Visual e Tátil
O Símbolo Internacional de Acesso (S.I.A.) deve indicar a acessibilidade aos serviços e identificar espaços, edificações, mobiliário e equipamentos urbanos, onde existem elementos acessíveis ou utilizáveis por pessoas com deficiência ou com mobilidade reduzida.
Ela deve ser aplicada na entrada da sua edificação (indicando que é um ambiente acessível), balcão de atendimento, sanitários, dentre outros.
Para garantir autonomia e acessibilidade de todas as pessoas, é importante que, a partir da entrada principal, seja instalado um piso tátil que conduza até o balcão de atendimento e ao mapa tátil. Dessa forma, é possível garantir que pessoas com deficiência visual ou com mobilidade reduzida possam se deslocar de maneira independente e segura.


Então? Como está sua edificação?
Acima listamos apenas alguns itens que devem ser adaptados à acessibilidade; sua recepção e a área de espera são o cartão de visita do seu empreendimento, e é essencial garantir que essas áreas sejam acessíveis e estejam em conformidade com as leis e normas. Isso não só proporciona um ambiente seguro e acolhedor para todos que frequentam o local , mas também garante a autonomia e a livre circulação das pessoas. Assim, podemos garantir uma experiência positiva para os visitantes e colaboradores, confiante para a imagem e competência do empreendimento.
Aqui é um exemplo de edificação bem sinalizada e livre de obstáculos, proporcionando acessibilidade e segurança para todos que circulam pelo local.


3) Balcão de Atendimento
Balcões de atendimento acessíveis devem garantir um MR posicionado para uma aproximação frontal. Devem garantir ainda a circulação adjacente que permite giro de 180° à PCR Balcões de atendimento acessíveis devem possuir superfície com largura mínima de 0,90 me altura entre 0,75 ma 0,85 m do piso acabado, assegurando-se largura livre mínima sob a superfície de 0,80 m. Devem ser asseguradas altura livre sob o tampo de no mínimo 0,73 me profundidade livre mínimo de 0,30 m, de modo que a PCR tenha a possibilidade de avançar sob o balcão. Também deve ser instalado o piso tátil de alerta no local de atendimento e S.I.A.
4) Local de espera com assentos
Em locais públicos, onde houver assentos de espera devemos garantir 5 % de assentos para P.O, (pessoa obesa) com no mínimo um; 5 % de espaços reservado para P.C.R. (pessoa em cadeira de rodas), com no mínimo um, e sinalizados.
5) Elevadores
Havendo elevadores, no mínimo um deles deve atender a NBR NM 313; também deve ser instalado piso tátil de alerta indicação da posição para embarque, além de sinalização em alto relevo e em braille com Instrução de uso, e indicação dos pavimentos atendidos, dispositivo de comunicação para solicitação de auxílio e sinalização sonora.
Acessibilidade é para todos! Quer saber mais sobre como implantá-la no seu negócio? Fale com a gente, estamos prontos para ajudá-lo.








